Купить квартиру в жилом комплексе "Озерки"
ул. Ильюшина, 13
Левобережный район
Текущая стадия строительства (13.01.2017)
В III квартале 2015 года компания «ВЫБОР» приступила к строительству нового жилого квартала «ОЗЕРКИ». Возведение домов осуществляется с применением передовых строительных материалов и 100% отделкой высокого качества.
Характеристики проекта:
комплекс многоквартирных домов
этажность: 17
общая площадь квартир:
позиция 1
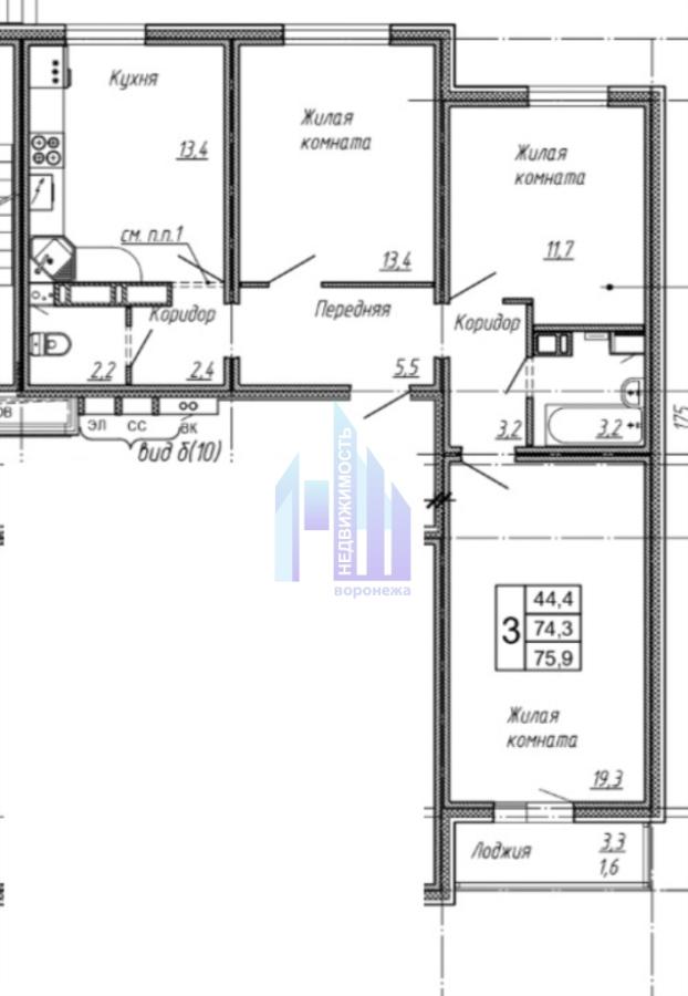
3 к. — 87,75 м?
позиция 2
1 к. — 38,67–38,99 м?
2 к. — 66,84–68,18 м?
3 к. — 86,41–87,75 м?
позиция 3
1 к. — 37,65–38,99 м?
2 к. — 57,85–69,28 м?
вентилируемый фасад
100% отделка с возможной комплектацией мебелью по желанию клиента
повышенная тепло- и звукоизоляция
развитая инфраструктура (2 детских сада на 250 мест каждый, школа на 1200 мест, поликлиника, аптека, торгово-развлекательный центр, фитнес-центр, ресторан, торговые и офисные помещения, объекты сферы услуг)
комплексное благоустройство (озеленение территории, зоны отдыха, спортивные и детские площадки)
территория квартала ограждена по всему периметру
благоприятная экологическая обстановка (вблизи лесного массива)
наземный и подземный паркинг, парковки
транспортная доступность
сроки сдачи:
поз. 1,2 — дома сданы
поз. 3 — I квартал 2017 г.
Концепция проекта:
Проект направлен на создание всех необходимых условий для комфортного и безопасного проживания: комплексное благоустройство и транспортная доступность.
Комплектация квартир:
металлическая входная дверь в квартиру
окрашивание стен в комнатах, прихожей и на кухне — обои
натяжные потолки
установлены выключатели и розетки, выполнен вывод под осветительные приборы
напольное покрытие в комнатах, прихожей и на кухне — линолеум, в санузле — плитка
межкомнатные двери (МДФ, текстура светлого натурального дерева)
сантехника на кухне — мойка стальная белая, смеситель, электрическая плита (выдается сертификат на приобретение)
окрашивание стен ванных комнат и санузлов (оттенок светлый, текстурный рисунок)
сантехника в санузле — унитаз, раковина, ванна стальная белая, смеситель, светильник
приборы отопления — радиаторы стальные панельные
пластиковые окна
балконы с ограждением
комплектация мебелью по желанию клиента (выгодные условия покупки, презентация вариантов комплектов мебели)
По желанию клиента возможна комплектация мебелью.
Комплексное благоустройство:
зоны отдыха
озеленение территории
детские комплексы из высококачественных материалов
спортивные площадки
Внутренняя инфраструктура:
2 детских сада на 250 мест каждый
школа на 1200 мест
поликлиника
аптека
торгово-развлекательный центр
фитнес-центр
ресторан
торговые и офисные помещения, объекты сферы услуг
Предусмотрены наземные и подземные паркинги, а также наземные парковочные места.
Въезд и выезд на территорию квартала жилых домов осуществляется от ул. Ильюшина. По периметру территории квартала жилых домов будет установлено ограждение.
Расположение:
Жилой квартал расположен на ул. Ильюшина. Выезд на Ростовскую развязку, связывающую трассу федерального назначения М4 «Дон», ул. Димитрова и ул. Изыскателей. Выезд на ул. Новосибирская (движение на о.п. Машмет) и ул. Лебедева (движение на Ленинский пр-т, выезд на Вогрэсовский мост).
Внешняя инфраструктура:
Вблизи жилого квартала в шаговой доступности находятся детский сад общеразвивающего вида №130, продуктовый магазин «Синторг», супермаркет «Магнит», почтовое отделение №72, АЗС.
Эксплуатация и управление жилого дома:
Строительная компания «ВЫБОР» занимается обслуживанием собственных объектов, что гарантирует высокое качество предоставляемых услуг, стабильность и надежность обслуживания, а также открытость формирования тарифов ЖКХ и рациональное распределение средств собственников жилья. Эксплуатацию и управление жилого дома осуществляет ООО «ВЫБОР-Сервис».
В транспортной доступности находятся (5–25 минут в пути):
Детские сады комбинированного вида №88, №82, №42, №180. Детские сады №133 и №183.
Средняя общеобразовательная школа №69, №30, №54.
Воронежский институт ФСИН России.
Библиотека №30.
Магазин «Идея». Торговый центр «Айсберг». Супермаркеты «Европа» и «Центрторг».
Торгово-развлекательный комплекс «Твой Дом», торговый центр METRO Cash & Carry.
Шведская компания IKEA планирует строительство торгового центра «Мега» в Новоусманском районе Воронежской области.
Железнодорожный вокзал «Придача».
Парк «Авиастроителей».
Стадион «Буран». На территории комплекса функцианирует детский сад, школа полного дня.
Фотографии объекта
Галченков Александр Валерьевич
тел.
Проверено
Галченков Валерий Анатольевич
тел.
Проверено
ООО Недвижимость Воронежа
тел.
Проверено
Галченков Валерий Анатольевич
тел.
Проверено
ООО Недвижимость Воронежа
тел.
Проверено
Галченков Валерий Анатольевич
тел.
Проверено
ООО Недвижимость Воронежа
тел.
Проверено
Галченков Валерий Анатольевич
тел.
Проверено
ООО Недвижимость Воронежа
тел.
Проверено
ООО Недвижимость Воронежа
тел.
Проверено
Галченков Александр Валерьевич
тел.
Проверено
Галченков Александр Валерьевич
тел.
Проверено
ООО Недвижимость Воронежа
тел.
Проверено
ООО Недвижимость Воронежа
тел.
Проверено
Галченков Александр Валерьевич
тел.
Проверено
Галченков Александр Валерьевич
тел.
Проверено
Галченкова Наталья Васильевна
тел.
Проверено
Галченков Валерий Анатольевич
тел.
Проверено
ООО Недвижимость Воронежа
тел.
Проверено
Галченков Александр Валерьевич
тел.
Проверено
Галченков Александр Валерьевич
тел.
Проверено

Регистрация / Вход